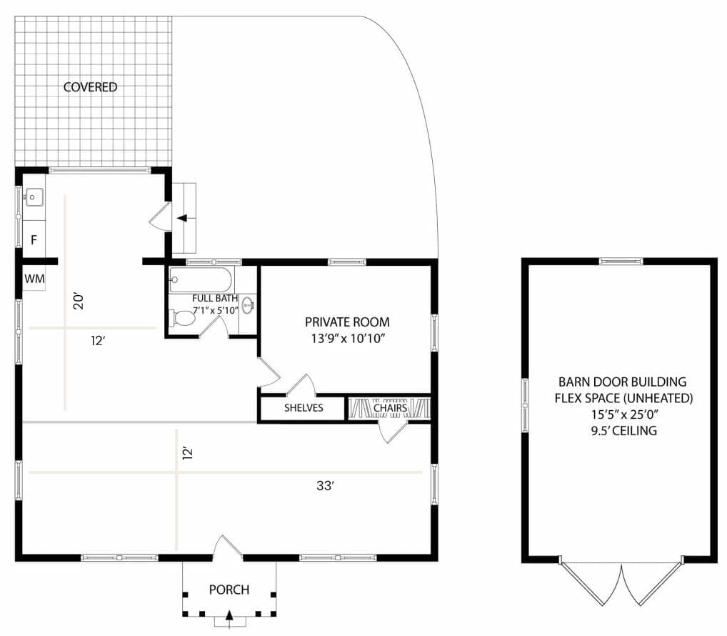
Although our primary feature is focused on the outdoor experience, and multiple flex spaces, in the below picture you can check out the floor plan of the interior and the covered barn door building.
We are usually asked, how many people the indoor space can host.
We have had events that had 50 people seated comfortably, with a fine dining table placement. The food was set up in the private room.
Attached a couple of photos for reference from that event.























